CAD / DXF Viewer icon

CAD / DXF Viewer

4.9
Rating
Everyone
Age
Advertisement

CAD / DXF Viewer App Info

  • Windows Name

    CAD / DXF Viewer

  • Available on

    PC, Mobile, Surface Hub, HoloLens

  • OS

    Windows 10 version 17763.0 or higher

  • Languages

    English (United States)

Advertisement

Introducing CAD / DXF Viewer for Windows: A Handy Tool for Precise Design Visualization

If you're navigating the world of technical drawings and CAD files, finding a reliable viewer that balances ease of use with powerful features can feel like searching for a needle in a haystack. Fortunately, the CAD / DXF Viewer for Windows, developed by Mia Sarah, aims to fill that gap with its straightforward approach and core functionalities tailored for professionals and hobbyists alike.

Who's Behind the Curtain?

This application is developed by Mia Sarah, a team that appears dedicated to streamlining CAD file viewing with user-friendly tools. While not a massive software giant, their focus on improving CAD file accessibility makes this viewer stand out in the Microsoft Store's marketplace of utilities.

Key Features That Make a Difference

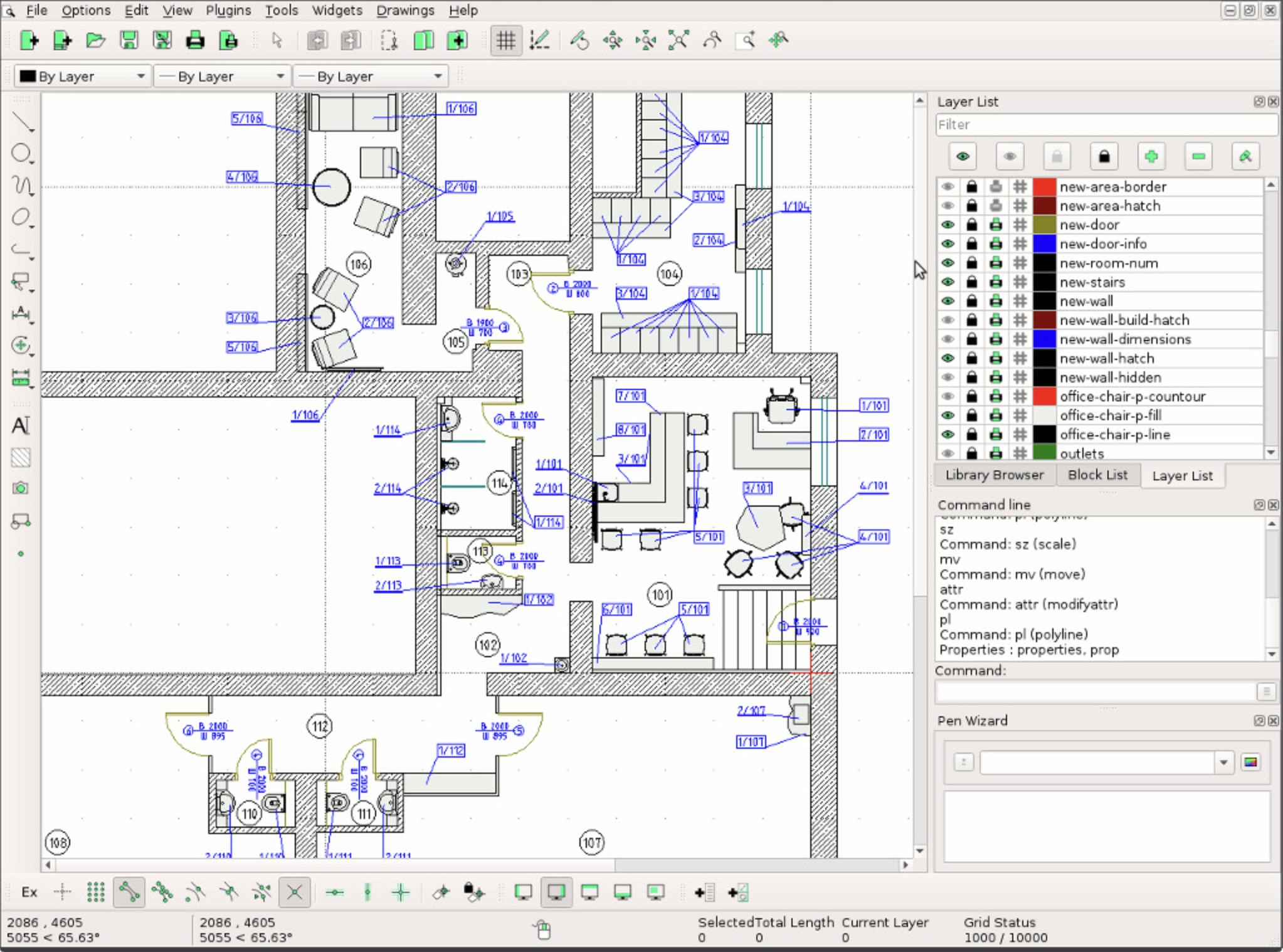
  • Seamless DXF and CAD File Compatibility: Open, view, and analyze your CAD files without the need for expensive or complex CAD software. The app supports various CAD formats, ensuring versatility across different projects.
  • Intuitive Navigation and Zooming: Navigate through complex drawings with smooth zoom and pan capabilities, akin to turning a large blueprint in your hands, making detailed inspection easy and frustration-free.
  • Layer and Object Management: Organize your drawings by toggling layers on or off, facilitating a clear understanding of complex designs and quick editing reviews.
  • Minimalist yet Informative Interface: Clean design emphasizes usability, displaying key information such as dimensions, layer structures, and element details with a glance.

A Closer Look: Core Functionalities Explored

Imagine opening a CAD file and instantly feeling at ease, as if you're unfolding a familiar blueprint. The CAD / DXF Viewer delivers this experience through its streamlined core features.

Effortless File Handling and Compatibility

This app excels at opening CAD and DXF files swiftly, without the heavy load times associated with larger CAD applications. Its compatibility covers a broad spectrum of file formats, making it extremely practical for users who need quick access to their designs. Whether you're reviewing architectural plans or mechanical parts, this viewer provides the flexibility to handle various CAD standards confidently.

Dynamic Navigation and Layer Control

Once inside the drawing, navigating large and intricate files is buttery smooth thanks to intuitive zoom and pan controls. Layer management is a standout; toggling different layers helps users dissect complex designs or focus on specific components. This feature resembles peeling away layers of an onion, revealing only the data you need at any moment, which significantly enhances analysis efficiency.

Clean UI and User Experience

The interface is straightforward, avoiding clutter and emphasizing essential viewing tools. The learning curve is gentle—akin to assembling a simple model—making it accessible even for beginners. Regular users will appreciate how quick and responsive the app feels, with no lag or confusing menus threatening to derail their workflow.

What Sets It Apart? A Unique Selling Point

While many CAD viewers exist, this app shines with its precise layer control and high compatibility in a sleek, minimal package. Unlike bulkier tools that aim to edit or modify files, Mia Sarah's viewer remains laser-focused on viewing, making it faster, lighter, and more user-centric. Its straightforward layer toggling and object management are particularly useful for quick cross-referencing, especially when examining dense drawings—think of it as having a magnifying glass that instantly reveals the hidden nuances of your design.

Should You Give It a Try?

For users seeking an efficient, no-fuss way to view CAD and DXF files on Windows, this app is a commendable choice. Its strengths lie in ease of use, speed, and detailed layer management—perfect for professionals, students, or hobbyists who want reliable visualization without the bloat of full CAD software. I'd recommend trying it out if your work involves frequent CAD file inspections but doesn't require extensive editing capabilities. Overall, it's a solid utility that makes technical drawings feel less intimidating and more accessible.

Pros

  • User-friendly interface
  • Fast file loading
  • Smooth zoom and pan functionalities
  • Supports multiple CAD formats
  • Free basic version

Cons

  • Limited editing features
  • No measurement tools
  • Occasional rendering glitches
  • Limited annotation features
  • Requires stable internet connection for updates
CAD / DXF Viewer icon

CAD / DXF Viewer

Version Updated 1770088790000

<
>
Advertisement